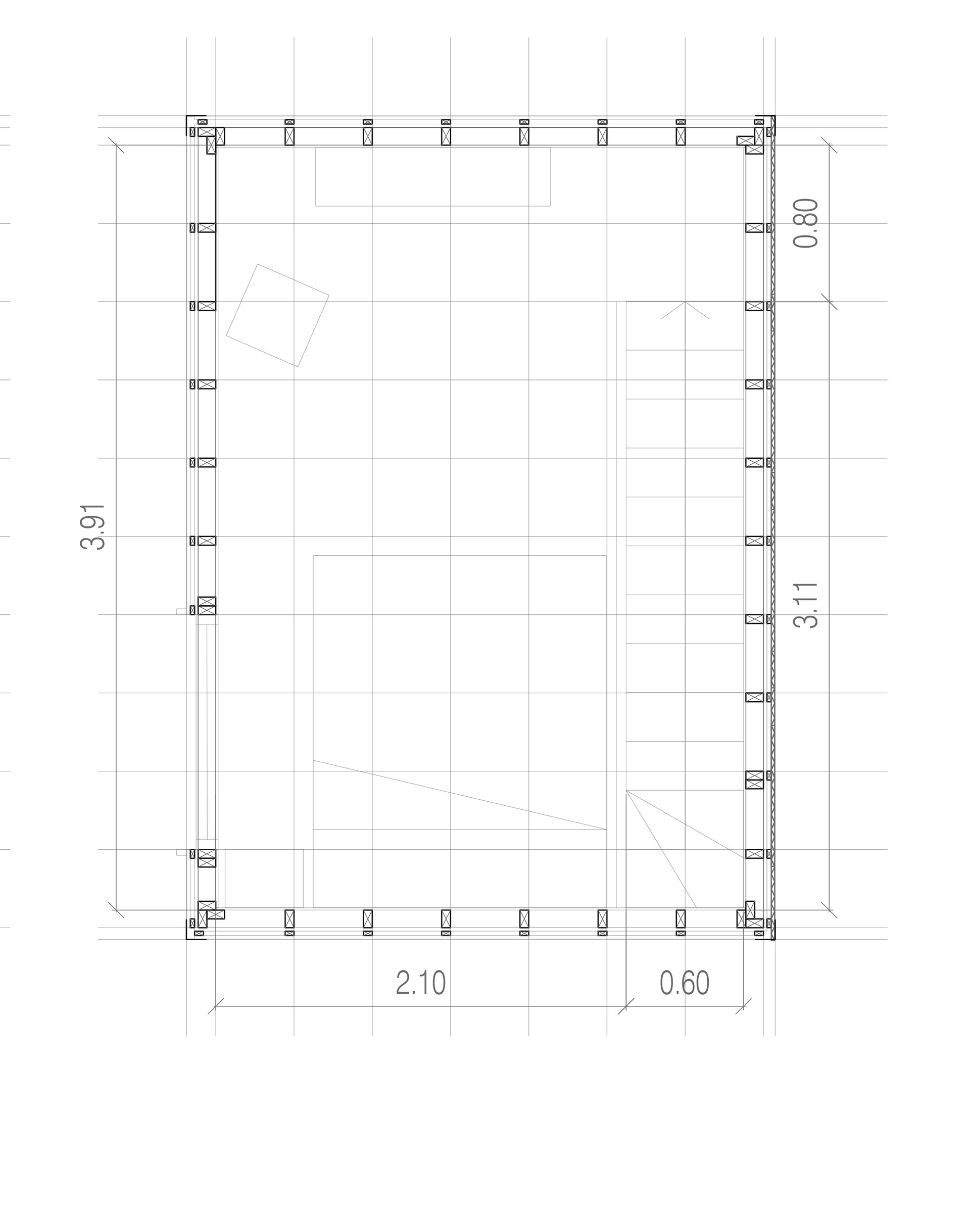
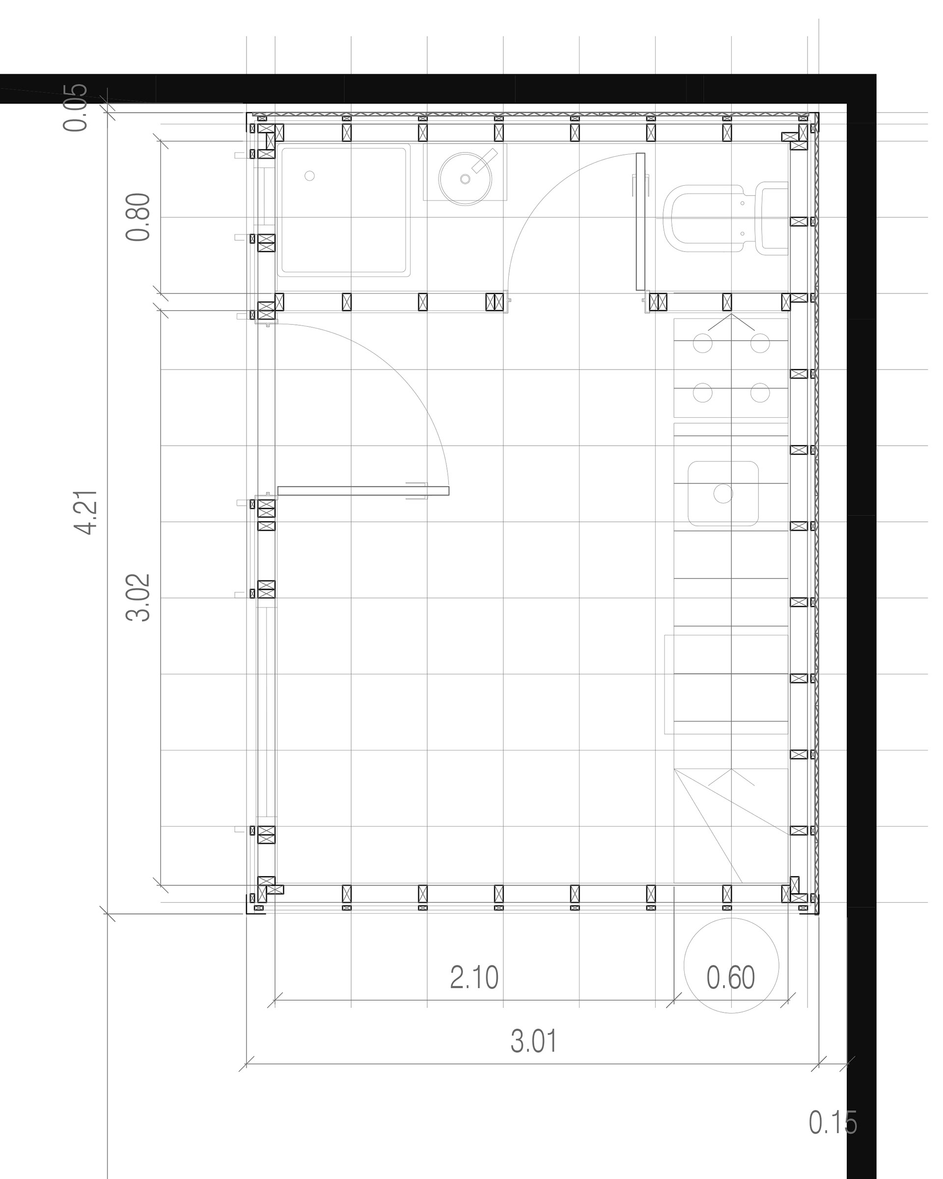
La Casa 3x4 nace como respuesta a la necesidad de una vivienda de emergencia con dimensiones mínimas, buscando máxima habitabilidad en un espacio reducido. Construida con madera autóctona, la propuesta prioriza las vistas del cerro Piltriquitrón.
Proyecto y dirección a cargo de Criolla Estudio Taller
Construye: ROMO Construcciones
Año: 2025.
Ubicación: El Bolsón, Comarca andina.
Estado: Construido
Proyecto y dirección a cargo de Criolla Estudio Taller
Construye: ROMO Construcciones
Año: 2025.
Ubicación: El Bolsón, Comarca andina.
Estado: Construido